
Mirror glass sauna

Architectural Glass Solution

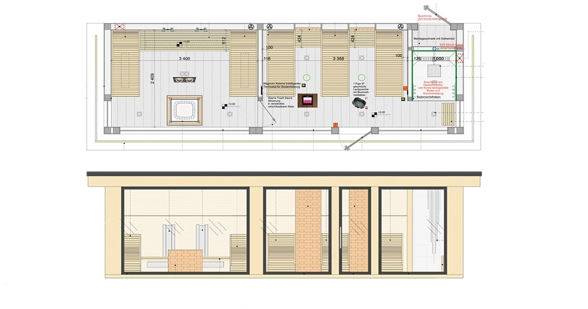
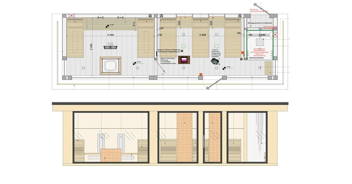
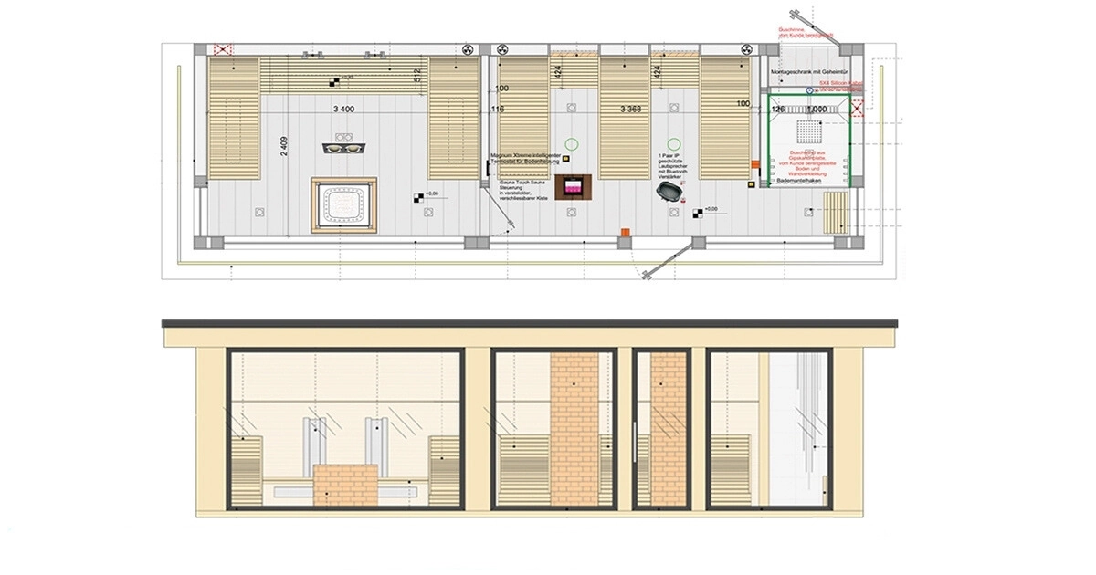
Sky Residence wellness house

Mirrorsauna

VIP Equestrian Facility - Different from the Others

Outdoor sauna, wellness house, mini holiday home in custom sizes

Comprehensive Equestrian Facility Design

Premium sauna experience in your home